Ein Landhaus ist ein Ort der Entschleunigung und ein echtes Statement für Lebensqualität. Während andere Baustile oft auf urbane Strenge setzen, verkörpert der moderne Landhausstil Gemütlichkeit, wohngesunde Schlichtheit und einen unverwechselbaren Charme.
Bei K&R Massivhaus entsteht Ihr Landhaus individuell geplant, mit durchdachten Grundrissen und einer Ausstattung, die zu Ihren Wünschen passt.
Erfahren Sie, welche hochwertigen Materialien, Markenprodukte und Leistungen in jedem K&R Massivhaus stecken – transparent, nachhaltig und bis ins Detail beschrieben.
Vergessen Sie das klassische Landhaus-Fertighaus. Bei K&R Massivhaus setzen wir auf eine wertbeständige Bauweise „Stein auf Stein“, die Wohngesundheit und Individualität vereint.
Seit über 40 Jahren begleiten wir Menschen auf dem Weg zu ihrem Zuhause. Wir wissen: Ein Traum braucht ein solides Fundament.
K&R Massivhaus verbindet traditionelle Elemente, natürliche Materialien und wohngesunde Massivbauweise – für ein Landhaus mit Charme und einem Wohngefühl im Einklang mit der Natur.
Moderner Landhausstil kombiniert natürliche Materialien, klare Linien und warme Farbtöne. K&R Massivhaus setzt beim Haus Friedewald auf eine Architektur, die Tradition und Moderne verbindet – mit Elementen wie Holz, harmonischer Formensprache und einer Massivbauweise, die Wohngesundheit und Wohnwert stärkt.
Ein Landhaus in Massivbauweise vereint natürliche Materialien, Energieeffizienz und langlebige Qualität zu einem Wohnkonzept, das echten Mehrwert schafft. Die massive Bauweise sorgt für ein wohngesundes Raumklima, Stabilität und hervorragende Dämmwerte. Gleichzeitig ermöglicht sie eine individuelle Planung, bei der Architektur, Details und Materialien ganz nach Ihren Wünschen gestaltet werden können. So entsteht ein Einfamilienhaus im modernen Landhausstil, das Komfort, Gemütlichkeit und ein Zuhause im Einklang mit der Natur bietet – ein Wohnraum, der Generationen überdauert und langfristig Wert garantiert.
Absolut. Durch eine flexible Planung passen wir den Haustyp an die spezifische Lage und Umgebung an, sodass er harmonisch mit der Landschaft verschmilzt.
Die Massivbauweise bietet einen höheren Wohnwert, bessere Wärmespeicherung und eine enorme Wertbeständigkeit über Generationen hinweg.
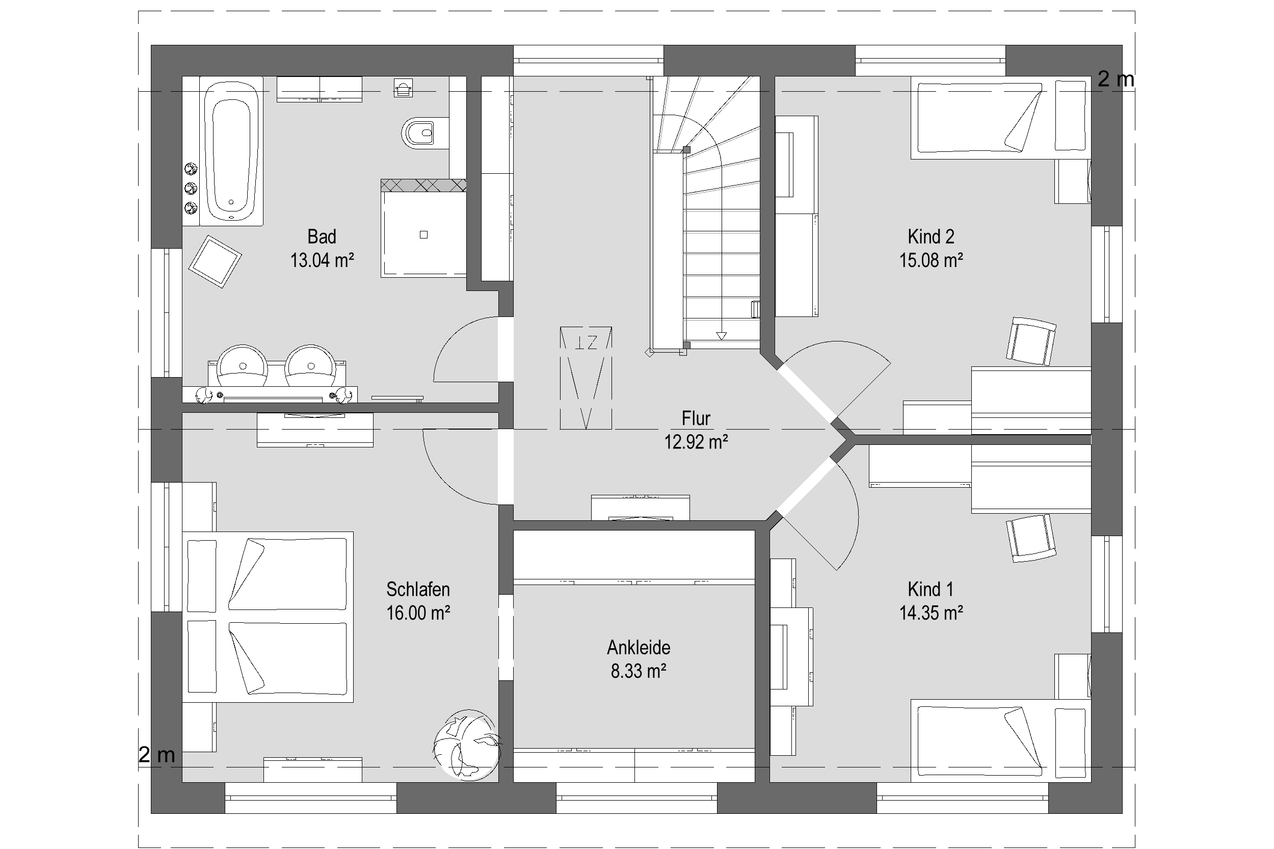
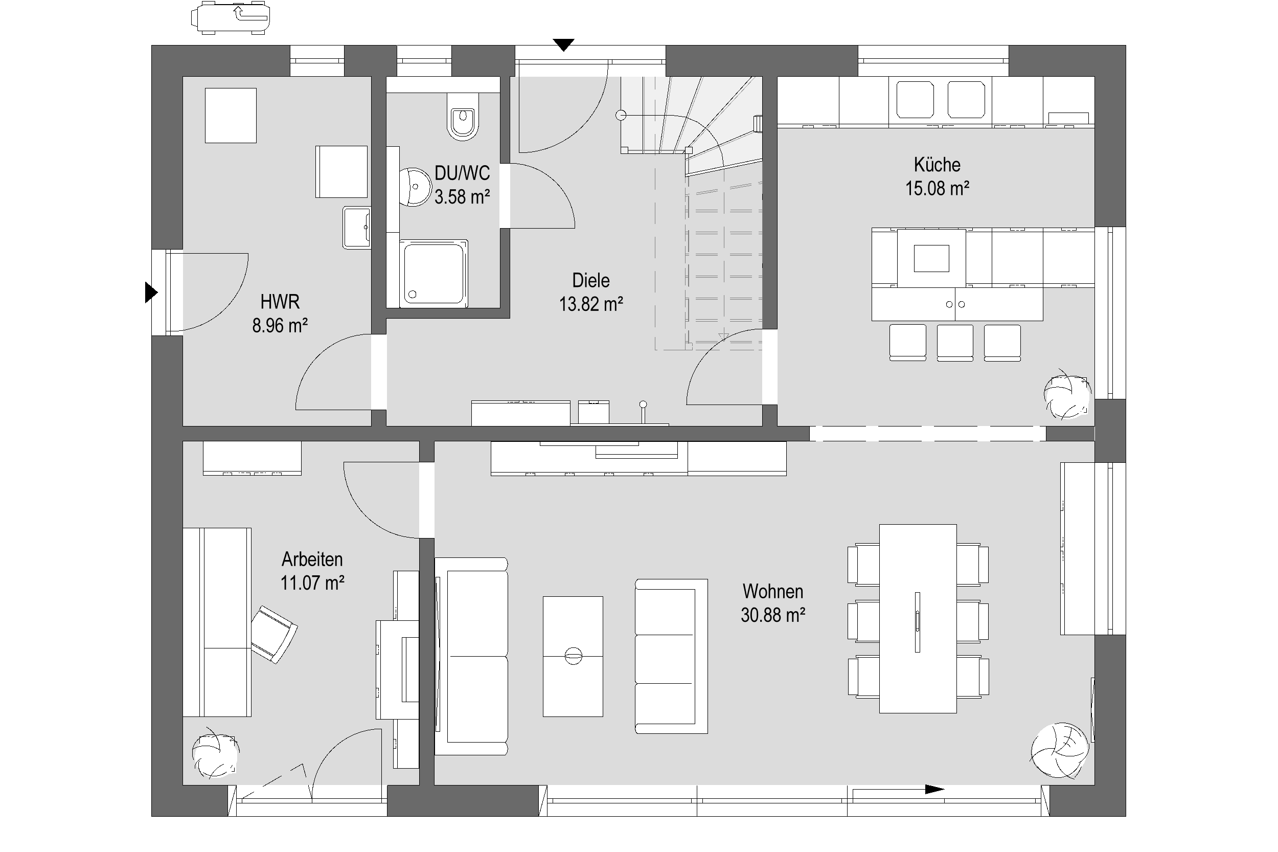
Vom Bodenbelag wie edlen Landhausdielen bis hin zur Gestaltung der Fassade ist alles ein fester Bestandteil unserer gemeinsamen Planung.
Ja. Die massive Bauweise sorgt für sehr gute Dämmwerte, ein angenehmes Raumklima und hohe Energieeffizienz. In Kombination mit moderner Haustechnik, natürlichen Materialien und aktuellen KfW-Standards entsteht ein nachhaltiger Haustyp mit hoher Lebensqualität.
Eine frühe Planung schafft Sicherheit bei Kosten, nutzt mögliche Förderoptionen und gibt Ihnen maximale Freiheit bei Grundriss, Architektur und Ausstattung – bevor Entscheidungen am Grundstück oder im Bebauungsplan Spielräume einschränken.
Sie müssen den Inhalt von reCAPTCHA laden, um das Formular abzuschicken. Bitte beachten Sie, dass dabei Daten mit Drittanbietern ausgetauscht werden.
Mehr Informationen